Ga naar de inhoud

Doorkoppelsysteem prefabwanden loopbox - 50x1602

st

Omschrijving

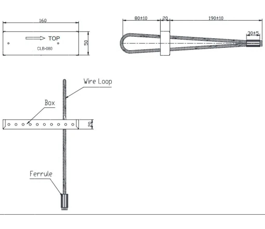
De loopbox is een metalen doos met een wachtlus.

De box is ontwikkeld om 2 prefabbeton wandelementen veilig, snel en efficiënt met elkaar te verbinden op de werf.

Kenmerken

  • Lus fase 1: +/- 190 mm
  • Lus fase 2 (in box): +/- 80 mm

Werkwijze

  1. In de eerste stortfase wordt de loopbox wordt aan weerszijden ingegoten op de kop van de prefab wandelementen
  2. Voor de tweede stortfase, bij het plaatsen van de elementen wordt de tweede lus uit de box gehaald en worden lussen over elkaar gepositioneerd
  3. Zorg dan voor voldoende wapening doorheen en rond de lussen

Metalen doos met wachtlus om 2 prefab wanden met elkaar te verbinden 50x160 mm

Technische gegevens

Lengte
160 mm
Breedte
50 mm
Diepte
20 mm

Offcanvas