Ga naar de inhoud
Welkom bij Uniconstruct
Geef uw postcode in om geholpen te worden door de partner van het Uniconstruct-netwerk in uw regio.

Plenum voor wervelrooster zijaansluiting Ø250

st

Omschrijving

Plenumbox met zij-aansluiting Ø 250 mm speciaal voor plafondroosters 595 x 595 mm zoals de wervelroosters wordt gebruikt voor luchttoevoer en luchtafvoer.

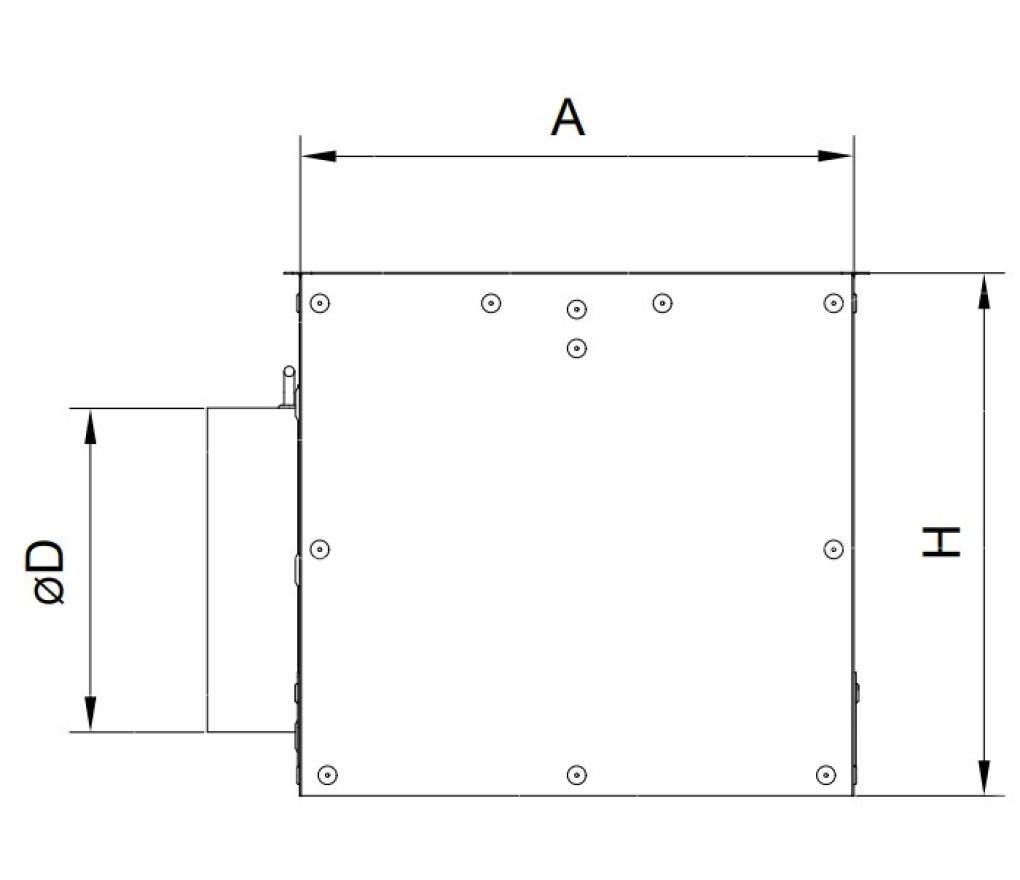
Kenmerken

  • Plenum breedte: 572 mm (A)
  • Plenum hoogte: 345 mm (H)
  • Aansluitdiameter voor Ø 250: 248 mm (D)
  • Interne debietregelaar

Plenumbox met zij-aansluiting Ø 250 mm speciaal voor plafondroosters 595 x 595 mm

Offcanvas