Ga naar de inhoud
Welkom bij Uniconstruct
Geef uw postcode in om geholpen te worden door de partner van het Uniconstruct-netwerk in uw regio.

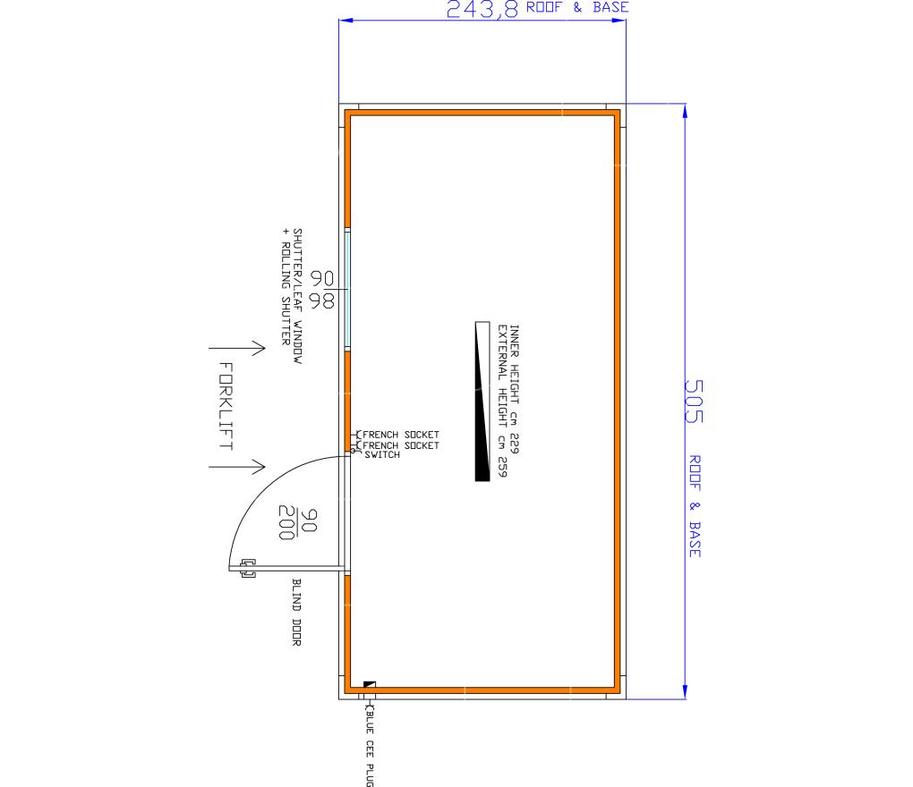
werfunit zware uitvoering 3 m

st

Lengte
300 cm

Omschrijving

De extra zware werkunits zijn robuuster gebouwd dan de standaard units.

Standaard uitgerust met een deur (aluminium) en draai-kiepramen met rolluiken. Eveneens voorzien van vorkheftruckuitsparingen, elektriciteit en verlichting.

Ze kunnen ook naar persoonlijke voorkeur worden uitgerust met extra binnenwanden, verwarming, airconditioning, sanitair, spoelbakken, enzovoort.

Kenmerken

  • Materiaal: gegalvaniseerd en gelakt
  • Het dak rust op zware hoekprofielen met staaldikte 2,5 mm
  • Wanden zijn isolerende zelfdragende sandwichpanelen van 50 mm dikte (Optioneel 60 mm te verkrijgen)
  • Zowel plafond als het bodemframe is geïsoleerd
  • Stapelbaar en aan de lange zijde koppelbaar

Werfunit zware uitvoering 3 m

Technische gegevens

Lengte
300 cm
Breedte
244 cm
Hoogte
255 cm
Gewicht
875 kg

Offcanvas