Ga naar de inhoud
Welkom bij Uniconstruct
Geef uw postcode in om geholpen te worden door de partner van het Uniconstruct-netwerk in uw regio.

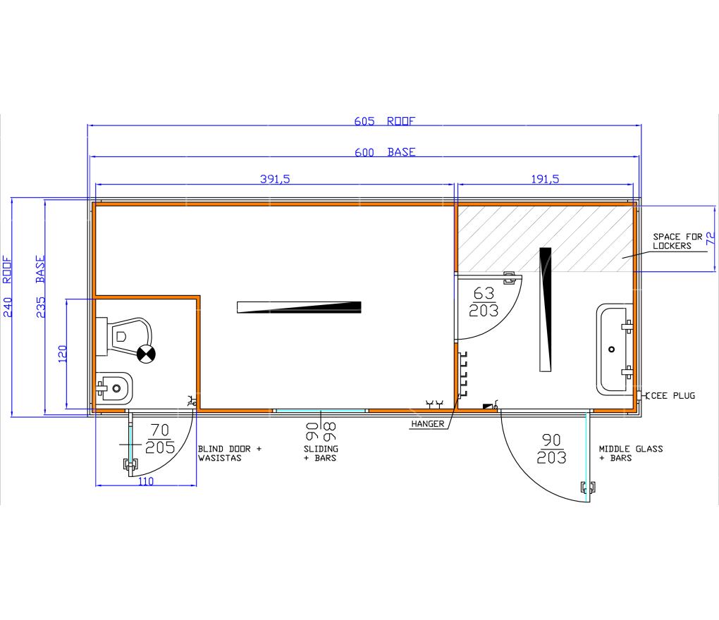
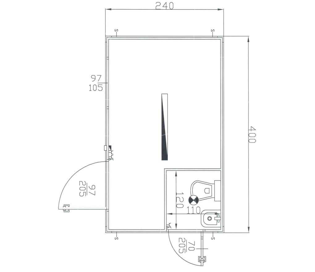
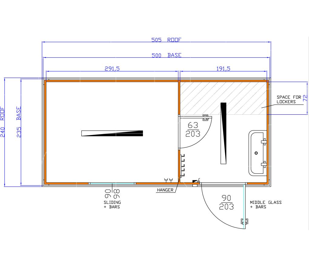
werfunit standaard + wc (l)400 x (b)240 x (h)223/250 monoblock 40 + vorkliftacc.

st

Lengte
400 cm

Omschrijving

De standaard "typecontainers" zijn ontworpen in overeenstemming met de regelgeving voor eetruimtes.

Het is niet langer toegestaan om een kleedruimte en eetruimte in dezelfde ruimte te combineren, daarom is de werfcontainer voorzien van een extra scheidingswand en deur.

Afhankelijk van het aantal gebruikers van de container is het mogelijk om deze in zowel een 7m als een 8m versie te bestellen.

Kenmerken

  • Kleedruimte is voorzien van een brede lavabo met 2 kranen
  • De lavabo is niet centraal geplaatst maar dichter bij de deur, zodat er ruimte overblijft voor het plaatsen van kleerkasten tegen de muur tegenover de deur
  • Voor natte kledij is er een kapstok voorzien vlak naast de buitendeur
  • De ruime en verlichte eetruimte, beveiligd met een traliewerk schuifraam, biedt in de hoek ook twee aansluitingen voor zowel een koelkast als een verwarming
  • Het toilet heeft zoals wettelijk verplicht een toegang naar buiten, toiletrolhouder, afzonderlijke lavabo met spiegel, zeepbakje, handdoekhouder en is voorzien van een stopcontact dat kan gebruikt worden voor een bijverwarming

werfunit standaard 400 cm+ wc

Offcanvas