Ga naar de inhoud
Welkom bij Uniconstruct
Geef uw postcode in om geholpen te worden door de partner van het Uniconstruct-netwerk in uw regio.

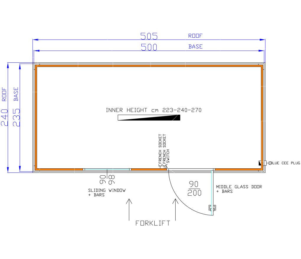
werfunit standaard (l)600 x (b)240 x (h)223/250 monoblock 40 + vorkliftacc.

st

Lengte
600 cm

Omschrijving

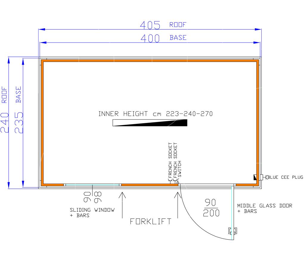
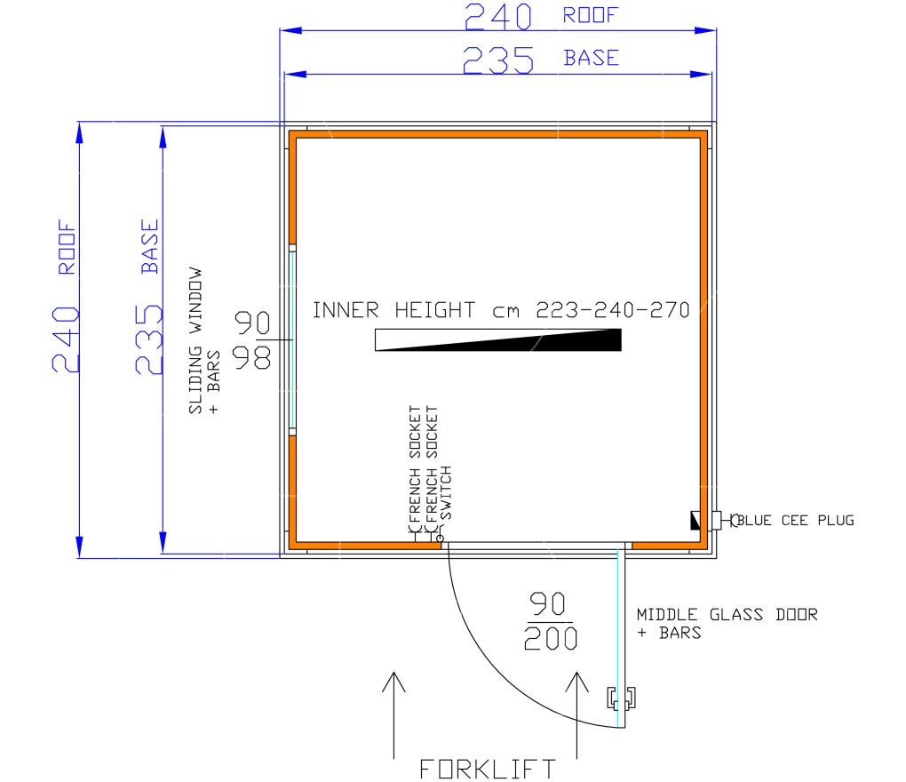
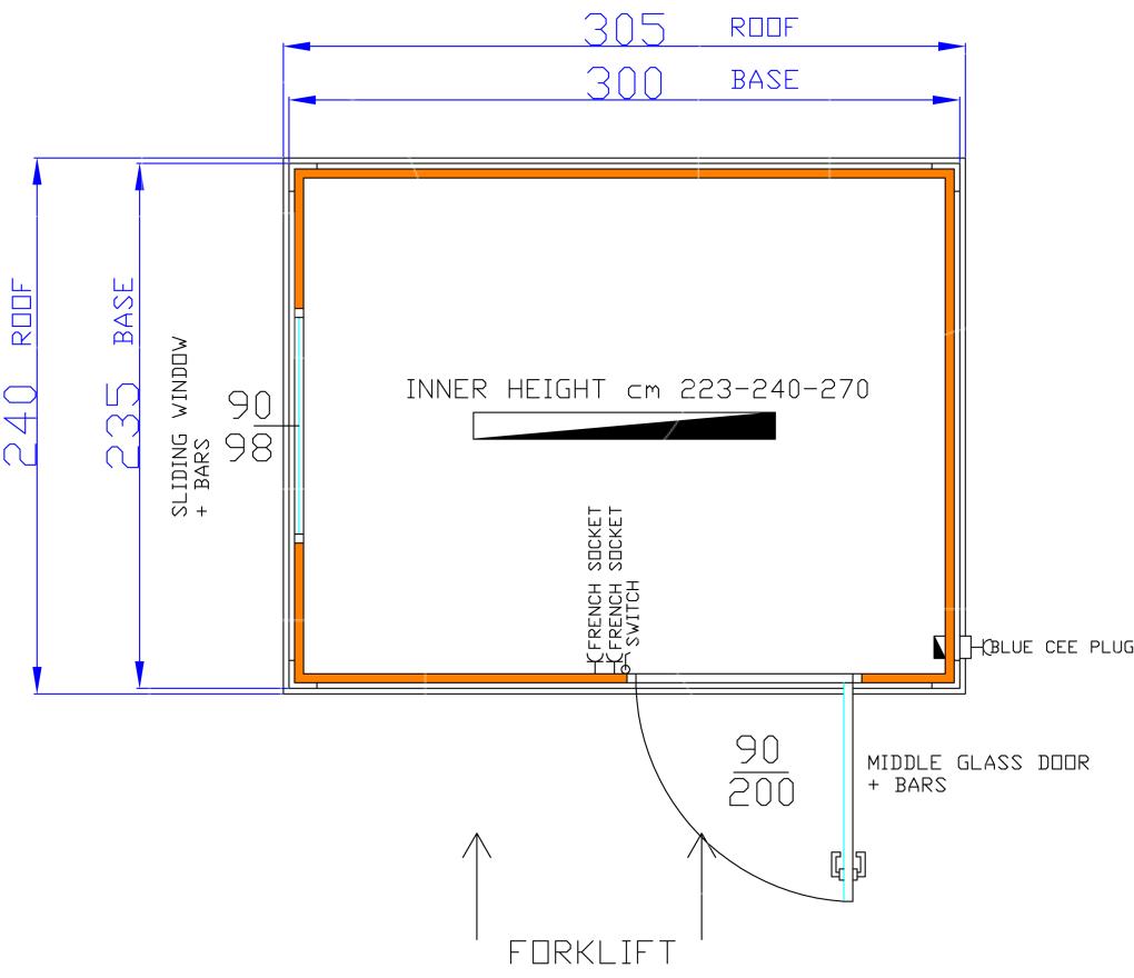
De standaard werfunits zijn beschikbaar volgens de grondplannen of kunnen volledig naar persoonlijke voorkeur worden ingericht.

Standaarduitrusting omvat: geïsoleerde container, deur met raam 97x205 cm, schuifraam 97x105 cm, verlichting, elektriciteit met standaard twee stopcontacten, vorkliftvoorziening onderaan de containers, vier hijsogen aan de bovenkant en CE-stekker aan de buitenkant.

Kenmerken

  • Materiaal: verzinkt en gelakt

Werfunit standaard 600 cm

Technische gegevens

Lengte
600 cm
Breedte
240 cm
Hoogte binnen
223 cm
Hoogte buiten
250 cm
Gewicht
1100 kg

Offcanvas